Phoenix House

Project overview

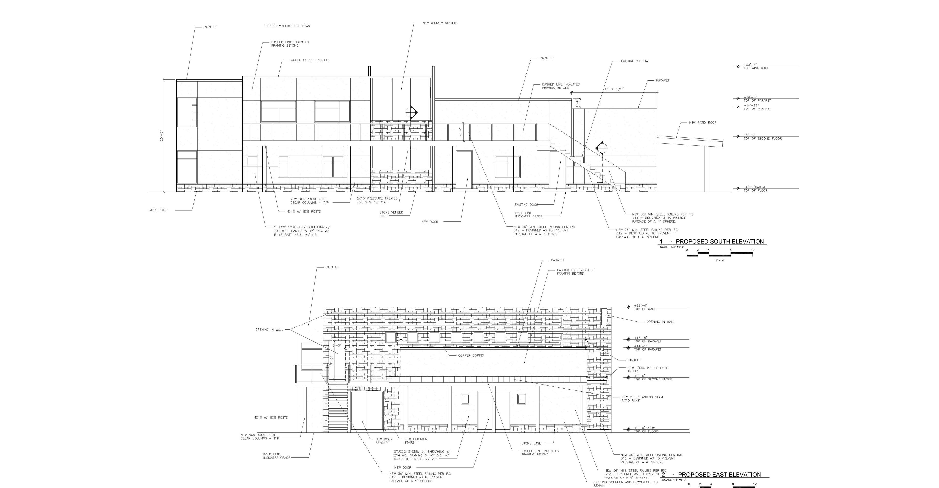
The Phoenix House is a ground-up, two-level, 4,825 square foot single-family residential design, inspired by the distinctive themes of the Arizona desert. The design draws influence from modern Pueblo architecture, incorporating stone and stucco finishes to evoke a natural, earthy aesthetic in line with its desert surroundings.

A unique aspect of the design was the integration of colored phenolic panels into the building's cladding composition. These panels were strategically used to "cool" the facade, offering a contrast to the warmer desert tones of the stone and stucco. The result is a striking yet harmonious blend of materials, providing both aesthetic appeal and functional thermal performance.

The project involved custom architectural design, material selection, and a tailored approach to site orientation to enhance the home's connection to its desert landscape, ensuring the home was both visually striking and climate-appropriate.

Studio Rinato

3100 Airport Way South | (206) 854-0814 | bhamilton@studiorinato.com

© Studio Rinato, 2025