Clover Pass Resort

Project overview

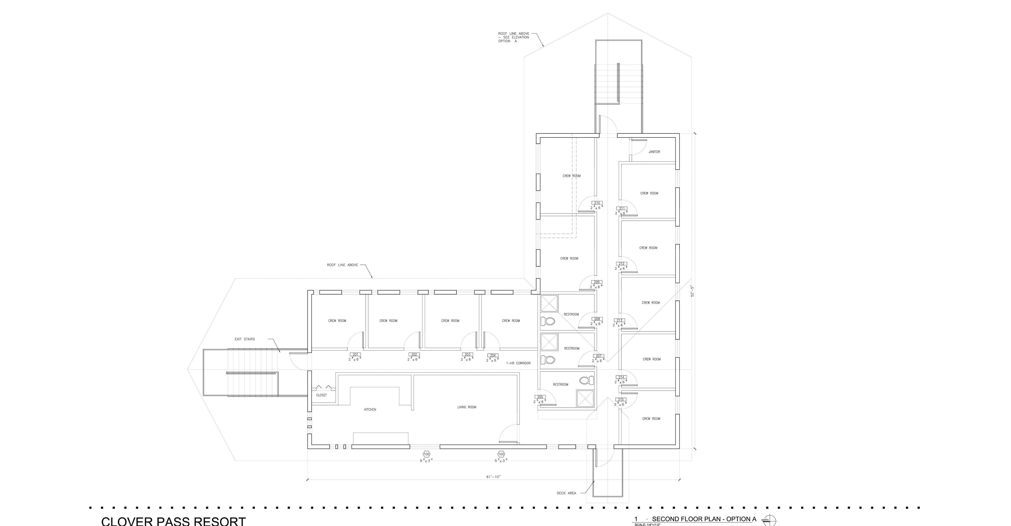
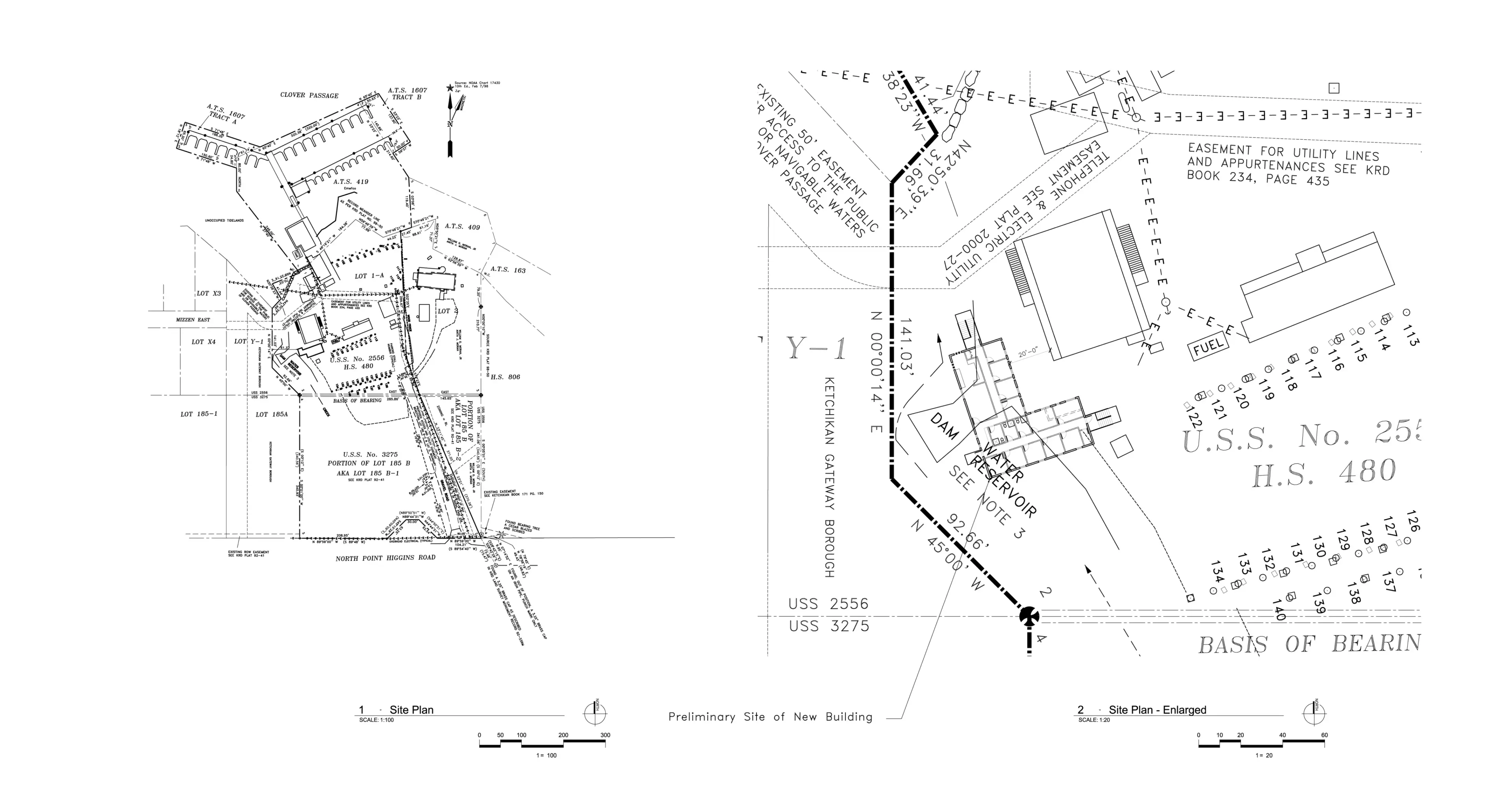
Clover Pass Resort, a fishing lodge and hotel located in Ketchikan, Alaska, spans approximately 8 acres of prime property. The ownership group sought to expand the resort’s capacity by designing and building a new lodge to accommodate increased demand.

The scope of work involved conducting entitlement research, performing due diligence on environmental critical areas, and developing preliminary site plans for the new lodge. Schematic design was completed to ensure the project met both functional and aesthetic goals while complying with local regulations.

Key contributions included entitlement research, zoning and code analysis, coordination with local civil engineering consultants, programming, schematic design, and preliminary budget analysis to assess project feasibility and ensure cost-effective design solutions.

Studio Rinato

3100 Airport Way South | (206) 854-0814 | bhamilton@studiorinato.com

© Studio Rinato, 2025